INICIO
NOSOTROS
SERVICIOS
PROYECTOS
CONTACTO
<
>
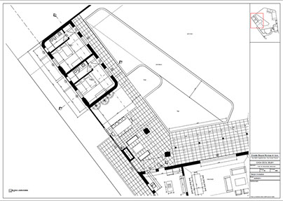
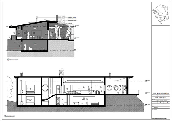
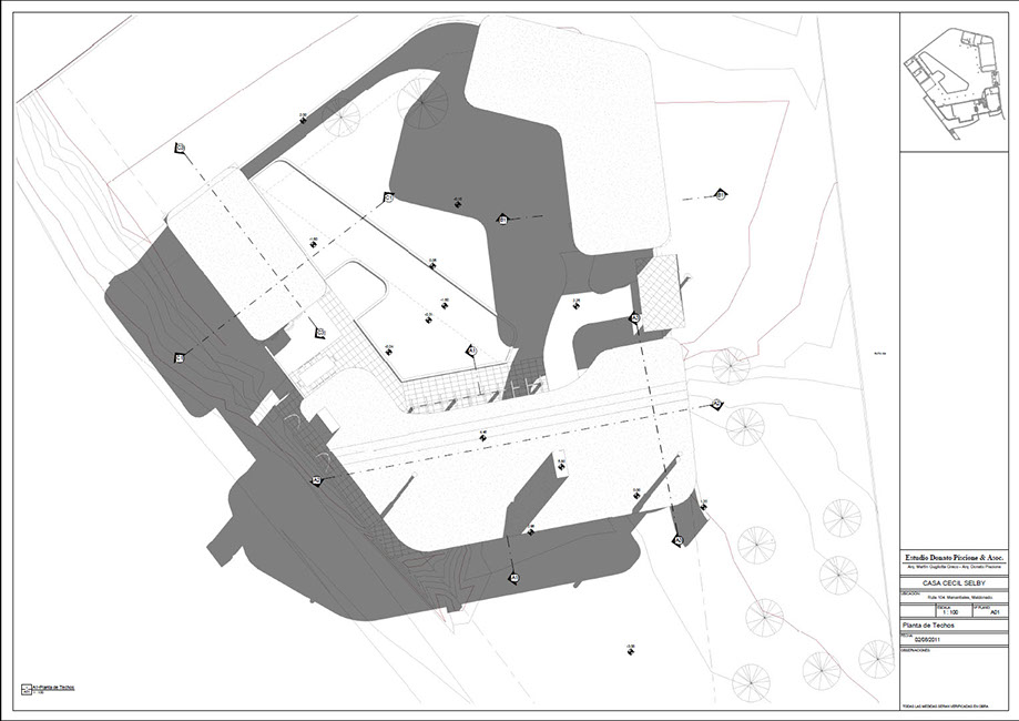
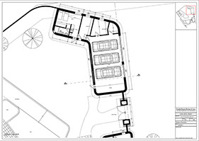
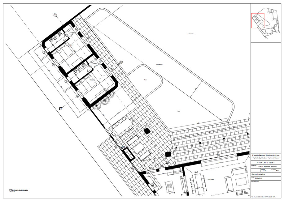
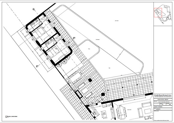
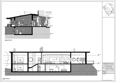
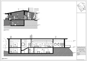
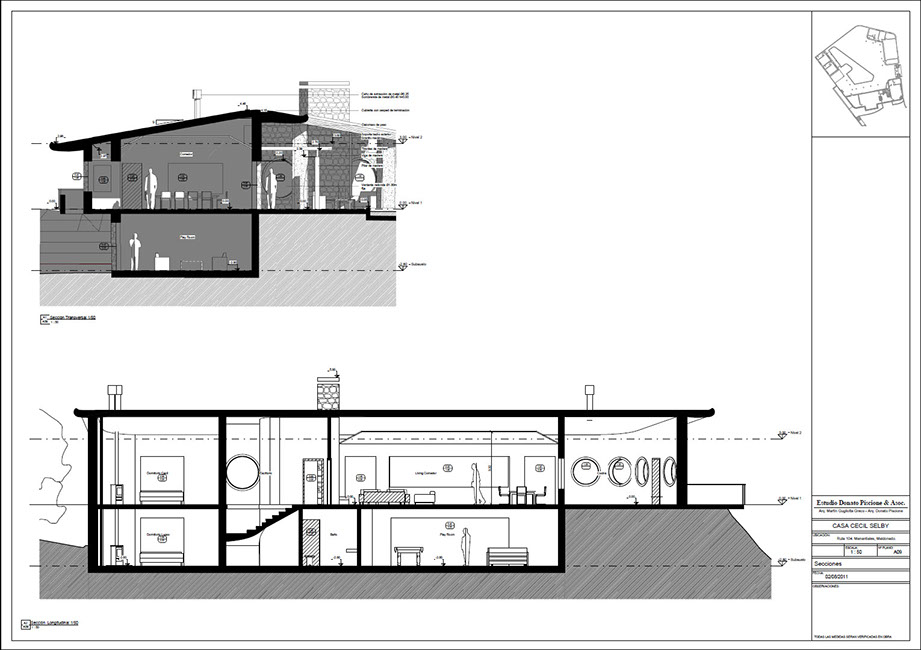
Proyacto Cecil Selby
Ubicación
Ruta 104 Manantiales Departameno de Maldonado
Año
2012
Proyectos
Proyecto Anterior
Siguiente Proyecto
^
Sitio diseñado por Germán Sánchez en 2017.